








PROCESS
RESEARCH
Elio (the director) shared a vision of a harsh world that could dwarf the bohemians, making their spirit feel even more fragile and radiant. We turned to brutalist architecture and reimagined its forms within the context of Paris.






SKETCHES
Early sketches explored shapes that reflected unity—friendship, love, and resistance. That concept soon evolved into a modular set that opened and closed like a book, following the emotional arc of the story.








VISUALIZATIONS
Digital visualizations helped us see how all scenic elements could integrate into the space. Later, scale models allowed us to explore how light and energy would move through the design, mirroring the life force of the bohemians.








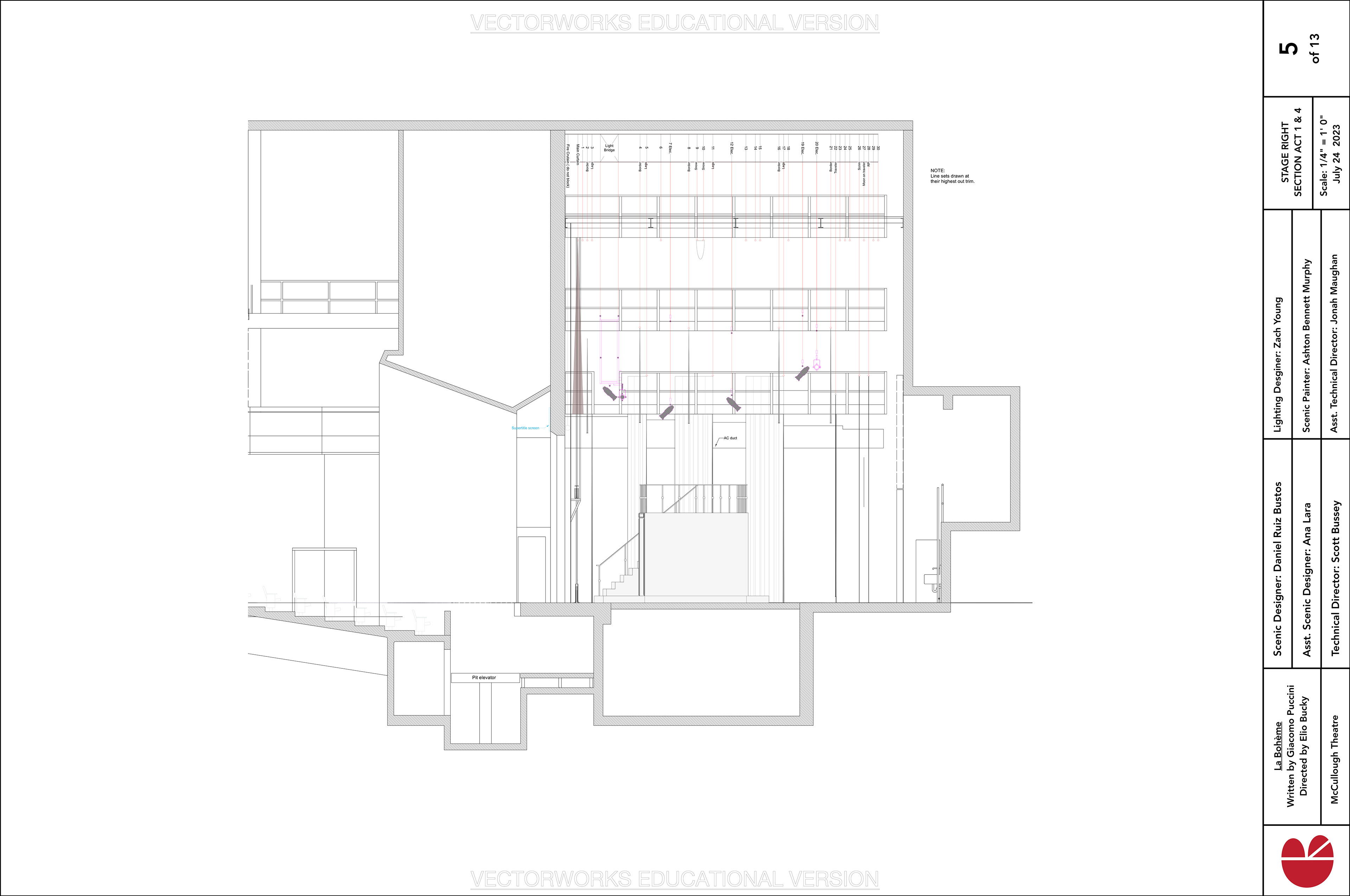
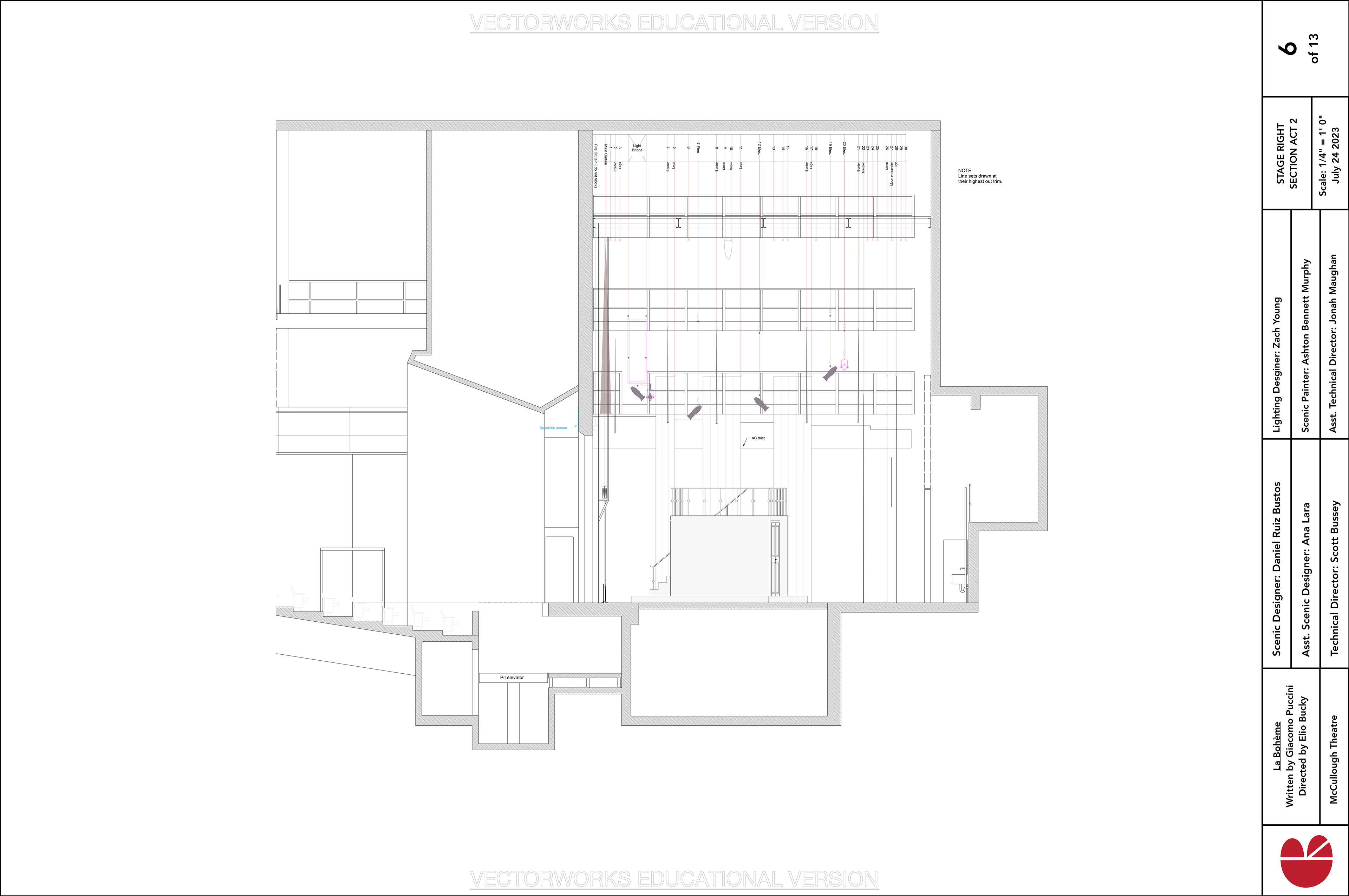
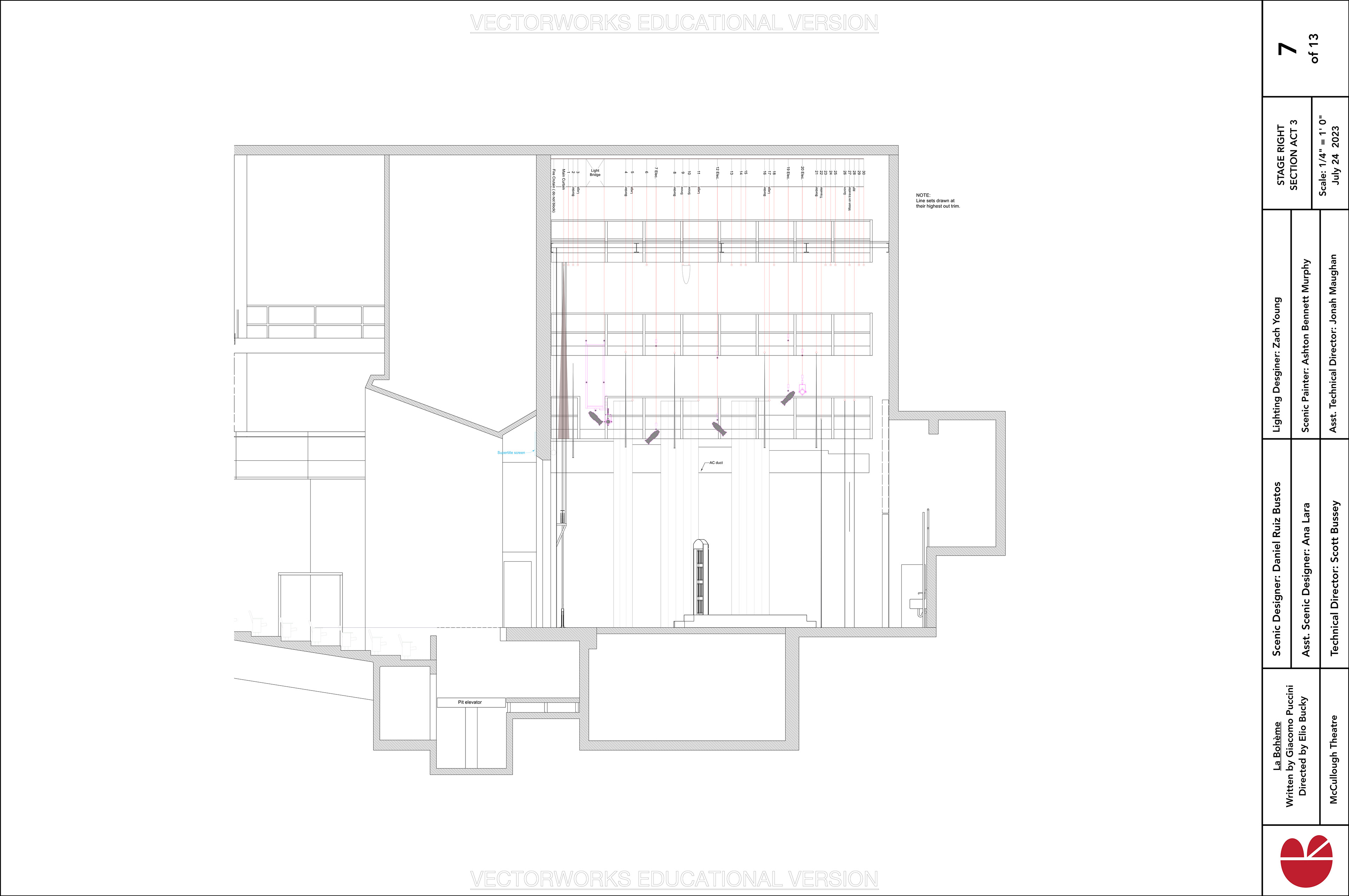
DRAFTING
Designing the two wagons was a fascinating challenge—they had to move and rotate 360°. Working closely with the technical director helped us place every element without compromising storytelling or design integrity.












PAINT ELEVATIONS
Color and texture brought everything into focus—anchoring us in both time and place. Some scenic details were intentionally darkened to later come alive through lighting, letting the bohemian spirit shine from within.







